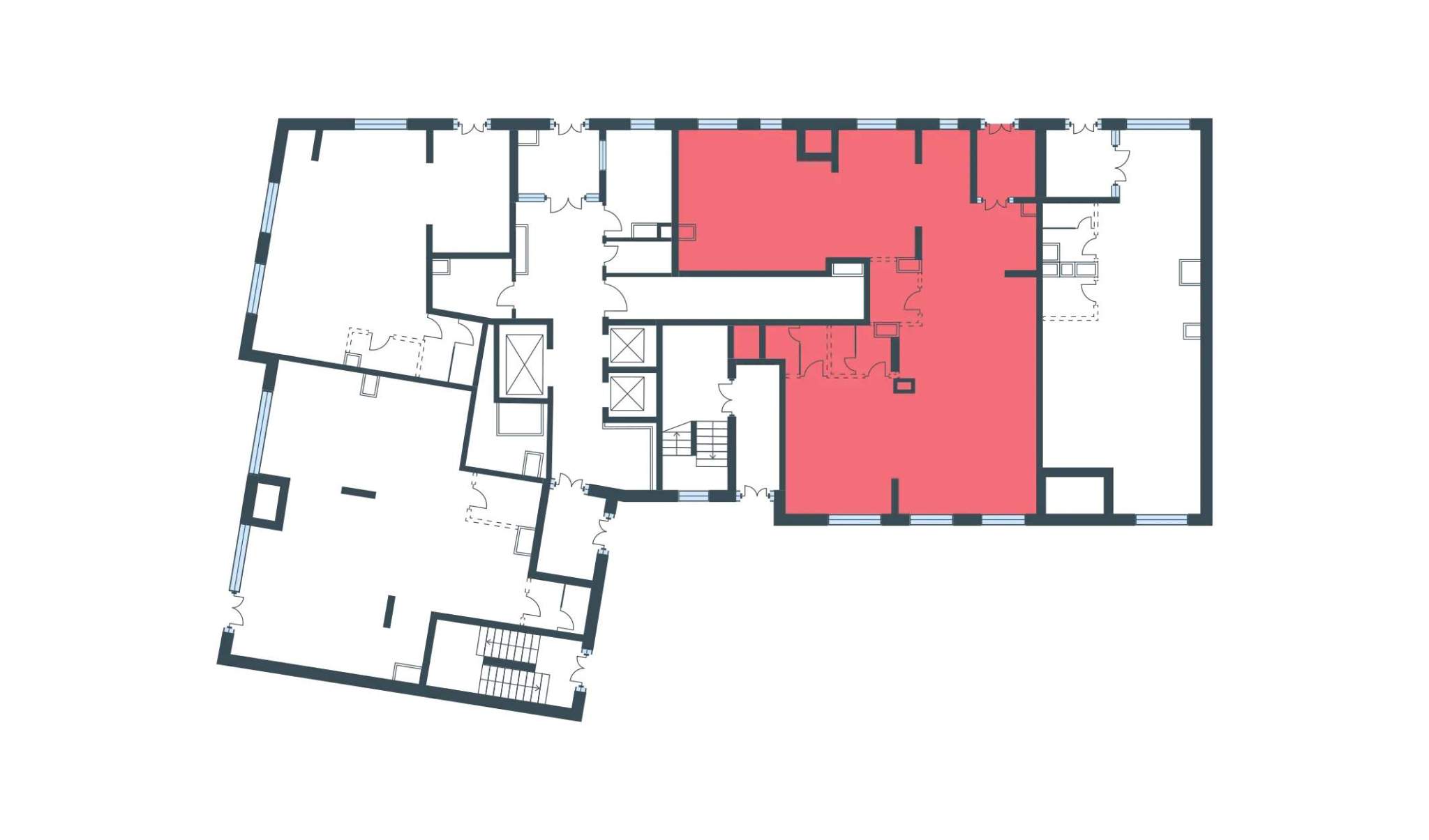
Аренда ПСН площадью 132.7 м2
Стоимость аренды
179145
руб./месяц
ЖК «Бригантина» - модерновый комплекс уровня «комфорт» в Долгопрудном. Город считается не только самым молодым в Подмосковье, но и перспективным, благодаря современной инфраструктуре и близкому соседству со столицей.
Тринадцать домов из четырнадцати возведены и сданы в эксплуатацию. Строится еще один жилой корпус. В комплексе создана собственная развитая инфраструктура с социально-бытовыми и торговыми объектами. На первых этажах заселенных домов открыты магазины, кафе, пекарни, аптеки и салоны красоты, сдан в эксплуатацию многоуровневый наземный паркинг на 813 машино-мест. Здесь уже построены в общей сложности четыре дошкольных учреждения на 570 мест, детская поликлиника на 95 посещений в смену. Также ведется строительство еще одного встроенно-пристроенного детского сада для 135 малышей и взрослой поликлиники на 95 посещений в смену. Для города Долгопрудный ГК «Гранель» возводит отдельно-стоящее здание родильного дома и нового корпуса школы №7 на 1500 учащихся. В ЖК «Бригантина» доступны в аренду и под продажу помещения на первых этажах жилых домов с отдельными входными группами, витринным остеклением, всеми коммуникациями и местами под вывески. Общая стоимость: 179145 руб./месяц с НДС Общая площадь: 133 кв. м Этаж/этажность: 1/24
г. Долгопрудный
Парковая улица, 42к1 |
2184232 04 Февраля 2026 просмотров 1 |
Добавить комментарий
Похожие объявления














